Description de l'offre
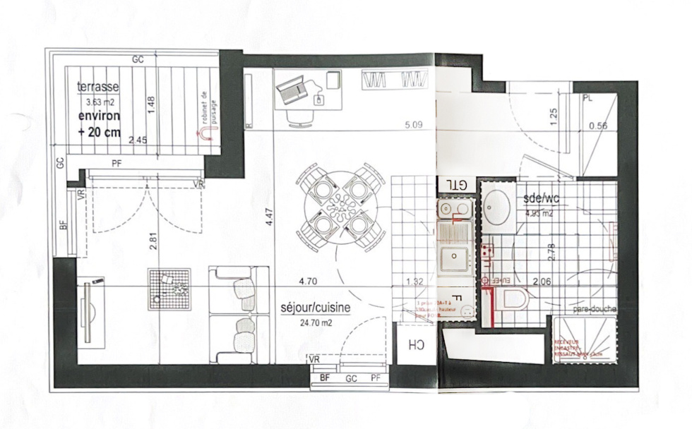
Rare à Meudon Bellevue (rue Basse de la Terrasse), dans une résidence de standing premium, appartement type F1 MEUBLE de 30m² avec terrasse de 4m² et vue panoramique sans vis-à-vis. Prestations de grande qualité dans cette résidence BBC livrée en 2019. Séjour en L avec cuisine américaine équipée, salle d'eau avec douche à l' iltalienne, volets roulants électriques, domotique, RJ45. Le chauffage et l'eau sont individuels au gaz. Il est loué avec un emplacement de parking d'accès très facile juste devant l' entrèe de l'immeuble. Les commerces et transports sont à proximité immédiate. Honoraires: 450 euros (visite+rédaction des baux+état des lieux / Dépôt de garantie : 1 930 euros. APPARTEMENT AVEC GARANTIE DES LOYERS IMPAYES.
