Avis clients contrôlés !
Notre entreprise est adhérente à Opinion System, n°1 des avis clients contrôlés pour professionnels du service, de l'habitat, du conseil et activités libérales, certifié ISO 20252, vous garantissant ainsi des témoignages clients authentiques.
Plutôt que d'essayer de vous convaincre de nous choisir, laissons nos clients s'exprimer. Cliquez sur les étoiles ci-dessous pour consulter leurs témoignages !

MEUDON BELLEVUE (Potager du Dauphin) - APPARTEMENT 3/4 PIECES - 100m² - 2 345 euros CC

< Retour

Outils pratiques

Partager sur

Coup de coeur

Appartement 100 m² - 4 Pièces - Meudon (92190)

Ref 1498
gallery loader
Prix 2 345 € CC*

Description de l'offre

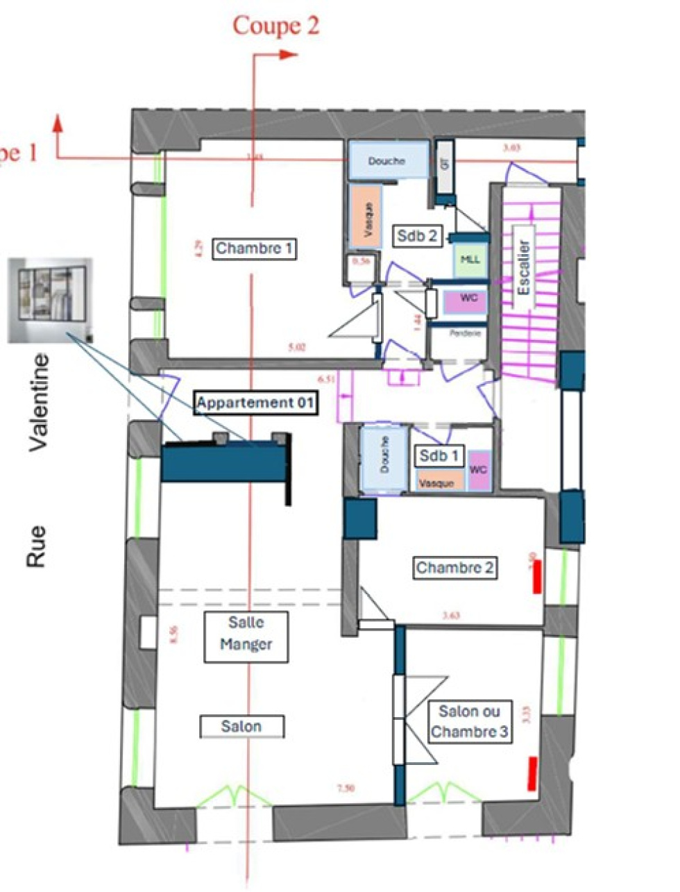
Meudon Bellevue (secteur Potager du Dauphin - rue Valentine). Dans un environnement des plus agréable (calme, verdure), au rez-de-chaussée d'une maison Art Déco datant des années 50 intégralement réhabilité, appartement 3/4 pièces de 100m² habitables. Baigné de lumière, il comprend une entrée desservant un séjour double avec cuisine US, 2 chambres dont une grande suite parentale, 2 salles d'eau et 2 WC. Le chauffage est collectif (très bon DPE : C). L'eau froide et chaude sont individuelles. Les commerces et transports sont dans un rayon de quelques minutes à pied. Honoraires : 1 500 euros (visite - rédaction baux - état des lieux) / Dépôt de garantie : 2 100 euros.

Descriptif du bien

Code postal 92190


Surface habitable (m²) 100 m²


Surface loi Boutin (m²) 99,95 m²


Nombre de chambre(s) 2


Nombre de pièces 4


Meublé NON


Nb de salle d'eau 2


Cuisine AMERICAINE


Mode de chauffage Gaz


Type de chauffage Radiateur


Format de chauffage Collectif


Année de construction 1950


Quartier Bellevue


Loyer CC* / mois 2 345 €


Honoraires TTC charge locataire 1 500 €


Dont état des lieux 300 €


Dépôt de garantie TTC 2 100 €


Charges locatives (Previsionnelles mensuelles les avec regularisation annuelle) 245 €


Diagnostics de performance énergétique

DPE
DPE

Montant estimé des dépenses annuelles d'énergie de ce logement pour un usage standard est compris entre 1 490 € et 2 060 € . 2023 étant l'année de référence des prix de l'énergie utilisés pour établir cette estimation.

Cette annonce vous intéresse ?

* Champs obligatoires

* : Les informations recueillies sur ce formulaire sont enregistrées dans un fichier informatisé par La Boite Immo agissant comme Sous-traitant du traitement pour la gestion de la clientèle/prospects de l'Agence / du Réseau qui reste Responsable du Traitement de vos Données personnelles.
La base légale du traitement repose sur l’intérêt légitime de l'Agence / du Réseau.
Elles sont conservées jusqu'à demande de suppression et sont destinées à l'Agence / au Réseau.
Conformément à la loi « informatique et libertés », vous pouvez exercer votre droit d'accès aux données vous concernant et les faire rectifier en contactant l'Agence / le Réseau.
Si vous estimez, après avoir contacté l'Agence / le Réseau, que vos droits « Informatique et Libertés » ne sont pas respectés, vous pouvez adresser une réclamation à la CNIL.
Nous vous informons de l’existence de la liste d'opposition au démarchage téléphonique « Bloctel », sur laquelle vous pouvez vous inscrire ici : https://www.bloctel.gouv.fr 
Dans le cadre de la protection des Données personnelles, nous vous invitons à ne pas inscrire de Données sensibles dans le champ de saisie libre
Ce site est protégé par reCAPTCHA, les Politiques de Confidentialité et les Conditions d'Utilisation de Google s'appliquent.

* CC : Charges comprises

Adhérents

Se connecter