Description de l'offre
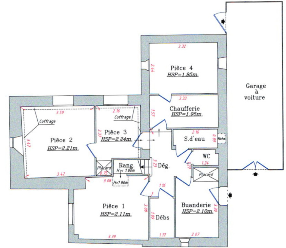
Située entre la gare de Meudon (ligne N) et la station Meudon-sur-Seine (T2), au sein d’une petite impasse privée, maison individuelle non mitoyenne de type R+1 d'une surface de 107 m². Elle se compose : Au rez-de-chaussée : une entrée, un séjour, une cuisine indépendante, deux chambres ainsi qu’une salle de bains avec WC. En rez-de-jardin : deux chambres supplémentaires, une salle d’eau, un WC indépendant, un dressing, une buanderie et un garage. Un jardin d’environ 200 m² entoure la maison.
