Description de l'offre
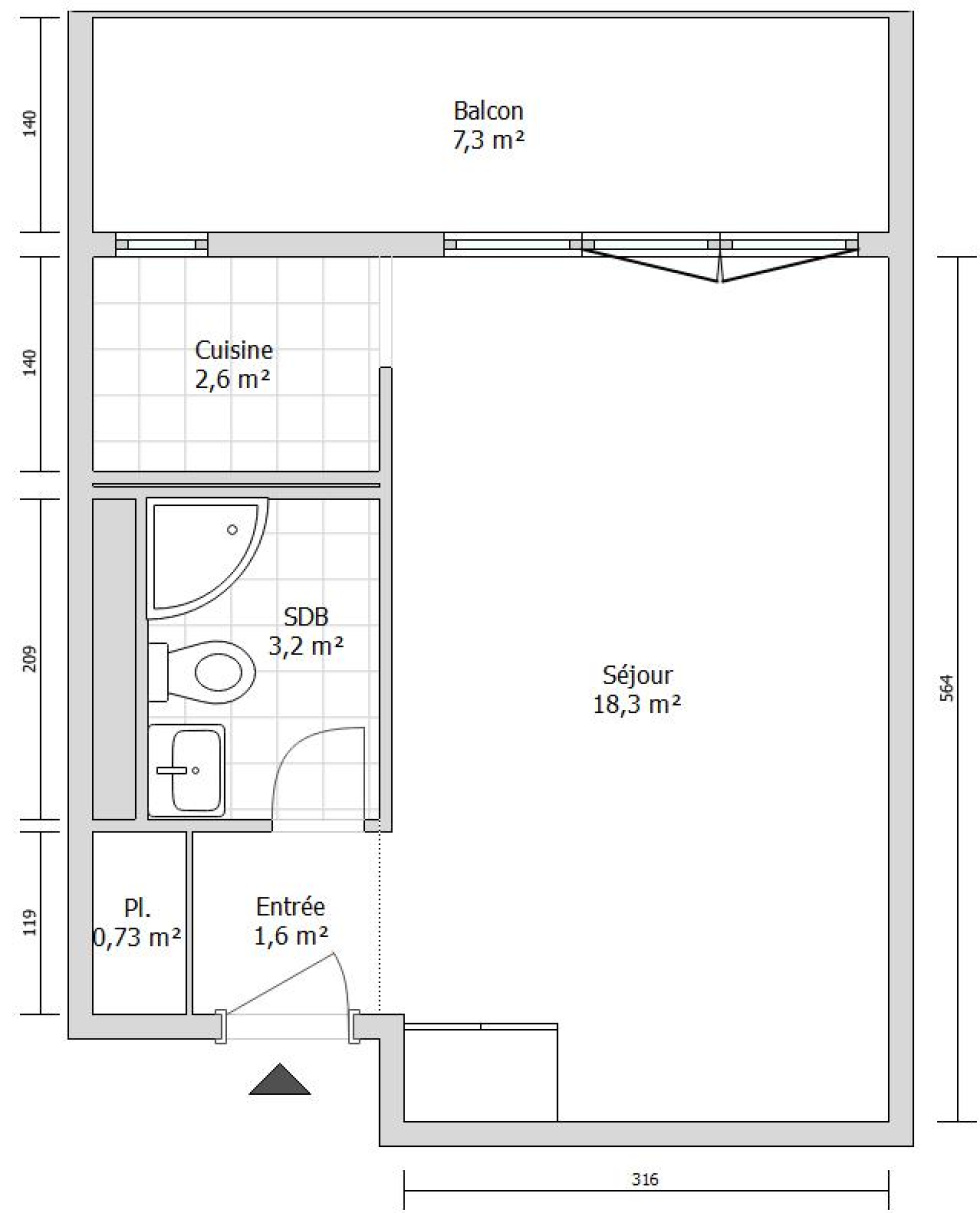
À Meudon, situé entre la gare T2 de Meudon-sur-Seine et la gare de Meudon (ligne N), au 4ᵉ étage avec ascenseur, appartement une pièce de 26,14 m² bénéficiant d’une vue panoramique sur Paris et d’un balcon de 7 m² sans vis-à-vis. Il comprend une entrée avec placard, une agréable pièce de vie avec lit mezzanine, une cuisine indépendante, ainsi qu’une salle d’eau avec WC. Une cave en sous-sol complète ce bien.
