Description de l'offre
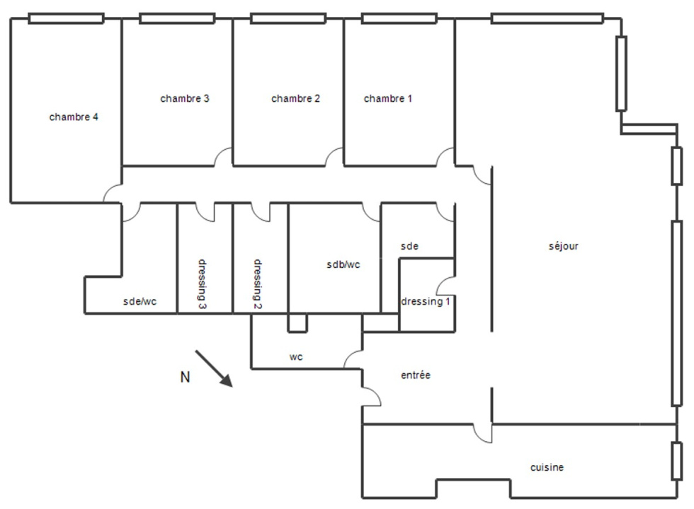
Meudon Bellevue, dans le quartier de l'observatoire, magnifique appartement de 164 m² au cœur d’une résidence de standing offrant un cadre de vie privilégié. Situé en bordure de forêt, dans un environnement calme et verdoyant, ce bien d’exception séduit par sa luminosité remarquable. Baigné de soleil tout au long de la journée, il offre des volumes généreux et chaleureux. La pièce de réception de 47 m² ouvre sur un balcon-terrasse, prolongement de l’espace de vie, depuis lequel vous pourrez profiter d’une vue sur Paris. Un lieu idéal pour la détente ou pour recevoir en toute convivialité. La cuisine aménagée offre un espace repas. Elle se prolonge sur un office buanderie. L'espace de nuit comprend quatre grandes chambres accédant à un grand balcon. Elles sont agrémentées de trois dressings. Une salle de bains avec WC ainsi qu'une salle de douche et un WC inépendant complètent l'ensemble. Ce bien dispose également de deux places de parking en sous-sol ainsi que d’une grande cave (17 m²), offrant des espaces de rangement appréciables. Un appartement rare et élégance, offrant calme et qualité de vie.
